Foto levereras av Google Street View och kan vara oprecist:
Lager att hyra, Sollentuna, Kyrkvägen
Kyrkvägen, Sollentuna- Lager att hyra
- Ca. 170 m2
- Ca. 22 500 kr. per månad
Kyrkvägen, Sollentuna
- Lager att hyra
- Ca. 170 m2
- Ca. 22 500 kr. per månad
FÅ MER INFO OM LOKALEN
Du länkas till en annan portal, som kan kan kräva betalning eller skapande av en använderprofil
Lager att hyra, Sollentuna, Kyrkvägen
Fakta
- 569431
- Lager
- Industrilokal
- Ca. 170 m2
- Ca. 272 000 kr.
- Ca. 22 500 kr.
- Ca. 1 500 kr.
- 2,60 m
- 1
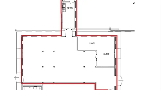
Lager/ Produktion/ Tillverkning, 170m² betonggolv markplan varav kontor 28,5m² och pentry 15,5m²
Praktisk och flexibel lokal i markplan med bra läge i Sollentuna.
Lokalen har betonggolv och passar utmärkt för olika verksamheter typ som lager, produktion, tillverkning.
• Markplan med enkel access
• Kontorsrum
• Pentry
• WC med dusch
• Mekanisk ventilation
• Fiber via Sollentunastadsnät
Perfekt för dig som söker en funktionell lokal med goda kommunikationer och närhet till service.
Lokalen har betonggolv och passar utmärkt för olika verksamheter typ som lager, produktion, tillverkning.
• Markplan med enkel access
• Kontorsrum
• Pentry
• WC med dusch
• Mekanisk ventilation
• Fiber via Sollentunastadsnät
Perfekt för dig som söker en funktionell lokal med goda kommunikationer och närhet till service.